Stretch Tents – Compactness Stretch Tent
R36 – Twin Peaks Basic Stretch Tent
Guests
1-2 people
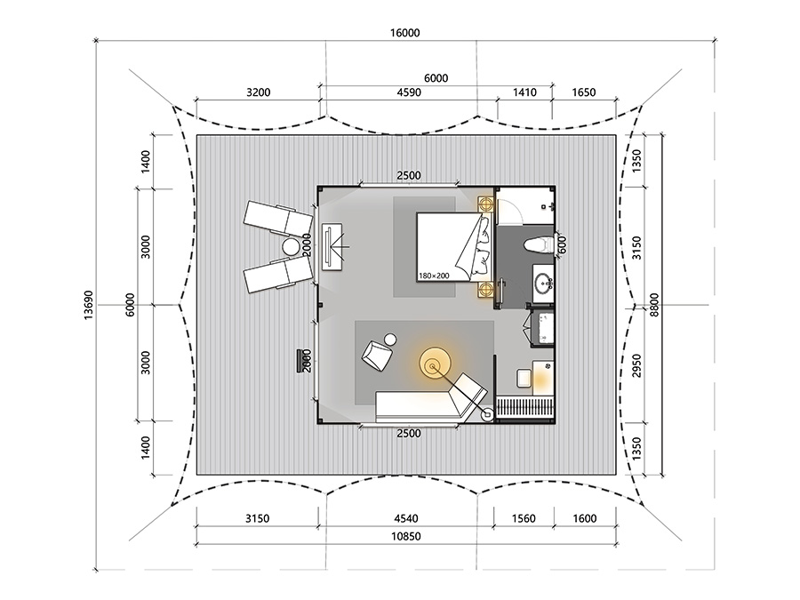
Total Surface
95m²
Inside Area
36m²
Veranda
58.3m²
Bedroom
1
Bathroom
1
Kitchen
No
Specifications Data
Dimensions
| Projected Area | 16m x 13m = 208m² |
| External Size | 8.8m x 10.8m = 95m² |
| Indoor Area | 6m x 6m = 36m² |
| Veranda Area | 58.3m² |
| External Height | 4.7m |
| Indoor Height | 3.2m |
Features
| Wind Resistance | Level 8 |
| Roof Load | 15kg/㎡ |
| Suitable Temperature | 0°C~40°C |
| Lifespan | 10 Years |
Structure & Connectors
| Poles | Scots Pine Wood |
| Pole Size | Dia. 70mm |
| Connectors | Anti-rust Steel Pipe |
| Connecting with | Self-tapping Screws |
Roof(Outer Fabric)
| Material | Mesh Cloth |
| Waterproof | 8000mm |
| Lightfastness | 7(Blue Wool) |
| Color | Khaki, Custom |
| Features | Flame retardant, mould proof, UV resistance, tear resistance |
| Fixing | Aluminum Strips, Ropes |
| Material | Mesh Cloth |
| Waterproof | 8000mm |
| Lightfastness | 7(Blue Wool) |
| Color | Khaki, Custom |
| Features | Flame retardant, mould proof, UV resistance, tear resistance |
| Fixing | Aluminum Strips, Ropes |
Inner Fabric
| Material | 420g Canvas / 1050g PVDF Arch. Membrane |
| Waterproof | 3000mm |
| Lightfastness | 5(Blue Wool) |
| Color | Khaki,Custom |
| Features | Flame retardant, mould proof UV resistance |
| Fixing | Pipe, Straps |
| Fixing with floor | Wood Strips, Waterproof Sealant |
Zipper Door x 1
| Size | 2.8m x 2.5m |
| Material | Oxford Fabric |
| Flyscreen | Yes |
Gas Strut Window x 1
| Size | 2m x 1.2m |
| Material | Oxford Fabric |
| Cover(Outside) | Clear PVC |
| Cover(lnside) | Oxford Fabric |
| Fixing | Velcro |
| Flyscreen | Yes |
Roof Color Options
Khaki
Brown
Black
Optional add-ons
Platform(Deck)
| Size | 16mx13m |
| Structure | Rust-resistant Steel |
| Tube Size | 100x80x4mm |
| Connection Method | Welding(or Screws and Nuts) |
| Flooring | Solid Wood Panels |
| Plank Dimensions | 4000x100x25mm |
| Plank Dimensions(Indoor Flooring) | 1210x183x12mm |
Furniture
| Main Material | Solid Wood |
| Furniture Class | 4-star Hotel |
| Bed and Mattress | 150x200cm * 1 |
| Nightstands | 40x40cm * 2 |
| Occasional Chair | 65x60cm * 1 |
| Round Table | 50cm * 1 |

